Описание
Характеристики
Описание
Материалы:
корпус емкости изготовлен из пищевого пластика (полиэтилена);
крышка, вал и рабочее колесо изготовлены из композитного материала.
Характеристики:
Мощность двигателя, кВт - 1,1;
Частота вращения вала, об/мин - 900.
Особенности установки пропеллерных мешалок:
мешалки необходимо устанавливать на емкость в соотношении 1/3 к 2/3 относительно диаметра для обеспечения равномерного перемешивания раствора;
мешалки весом до 25 кг устанавливаются непосредственно на крышку или ребра емкости;
мешалки весом более 25 кг необходимо устанавливать на металлическую опору, чтобы исключить нагрузку на емкость;
металлическая конструкция изготавливается индивидуально под каждую емкость, чертежи согласовываются с заказчиком после внесения предоплаты за поставку.
Сферы применения емкостей с мешалками:
для приготовления и поддержания консистенции различных агрессивных растворов в химической отрасли;
для приготовления растворов коагулянтов и флокулянтов в системах водоподготовки;
для обеззараживания, фильтрации, контроля качества при обработке питьевой воды;
для приготовления рабочих растворов и реагентов с целью обработки сточных вод в системах водоснабжения и канализации;
для приготовления и дозирования растворов реагентов на очистных сооружениях предприятий пищевой промышленности, нефтеперерабатывающей отрасли и прочих производственных стоков;
для приготовления однородной смеси и добавки ее в бетон при производстве цемента;
для растворения соли на предприятиях по выращиванию и разведению рыбы;
для приготовления диоксида титана с целью контроля матовости тонкой бумаги при производстве бумаги.
корпус емкости изготовлен из пищевого пластика (полиэтилена);
крышка, вал и рабочее колесо изготовлены из композитного материала.
Характеристики:
Мощность двигателя, кВт - 1,1;
Частота вращения вала, об/мин - 900.
Особенности установки пропеллерных мешалок:
мешалки необходимо устанавливать на емкость в соотношении 1/3 к 2/3 относительно диаметра для обеспечения равномерного перемешивания раствора;
мешалки весом до 25 кг устанавливаются непосредственно на крышку или ребра емкости;
мешалки весом более 25 кг необходимо устанавливать на металлическую опору, чтобы исключить нагрузку на емкость;
металлическая конструкция изготавливается индивидуально под каждую емкость, чертежи согласовываются с заказчиком после внесения предоплаты за поставку.
Сферы применения емкостей с мешалками:
для приготовления и поддержания консистенции различных агрессивных растворов в химической отрасли;
для приготовления растворов коагулянтов и флокулянтов в системах водоподготовки;
для обеззараживания, фильтрации, контроля качества при обработке питьевой воды;
для приготовления рабочих растворов и реагентов с целью обработки сточных вод в системах водоснабжения и канализации;
для приготовления и дозирования растворов реагентов на очистных сооружениях предприятий пищевой промышленности, нефтеперерабатывающей отрасли и прочих производственных стоков;
для приготовления однородной смеси и добавки ее в бетон при производстве цемента;
для растворения соли на предприятиях по выращиванию и разведению рыбы;
для приготовления диоксида титана с целью контроля матовости тонкой бумаги при производстве бумаги.
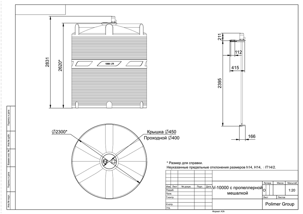
Характеристики
Производитель
Полимер-Групп
Объём
10000
Форм-фактор
вертикальная
Высота
2831
Длина
2300
Ширина
2300
Диаметр крышки
400
Код производителя
V-10000 с пропеллерной мешалкой
Серия
V
Объем транспортный
14975,99
Цена с НДС
246894
Все характеристики
Отзывы
Отзывов еще никто не оставлял
0
Всего
- 5 звезд 0
- 4 звезды 0
- 3 звезды 0
- 2 звезды 0
- 1 звезда 0
С отзывами о магазине вы можете ознакомиться на
странице отзывов
Оставить отзыв
Похожие товары из раздела «Ёмкости с мешалками Полимер-Групп»
Max
