Описание
Характеристики
Описание
Необходимость применения:
Жироуловители надежно предохраняют бытовую канализацию от загрязнения, так как жировые материалы при снижении температуры воды способствуют формированию отложений загрязнений в коммуникациях, что приводит их в аварийное состояние.
Сепараторы жиров защищают очистные сооружения от проблем в эксплуатации, так как присутствие нерастворенных жиров в сточных водах снижает эффективность процессов очистки.
Температура сточных вод, поступающих в жироуловитель, должна быть не более 40 °С!
Сепаратор жиров (жироуловитель) «UNI-S» изготовлен из полипропилена и предназначен для улавливания и удаления неэмульгированных жиров и масел из сточных вод от кухонь, ресторанов, столовых, кондитерских, мясоперерабатывающих и других предприятий перед выпуском образующихся сточных вод в очистные сооружения или городскую канализационную сеть.
Жироуловитель можно устанавливать непосредственно под мойки и в варианте для установки внутри помещения под пол (сифон на оттоке) или на полу (свободно стоящий).
Преимущества:
Высокая эффективность;
Компактность;
Гарантированная водонепроницаемость;
Несложный монтаж;
Минимальные расходы на установку;
Длительный срок эксплуатации;
Удобный доступ к накопителю жиров;
Удобство в обслуживании.
УСТРОЙСТВО И ПРИНЦИП РАБОТЫ.
Зажиренные сточные воды попадают в установку самотеком по трубе диаметром 50-150 мм. Вода самотеком проходит по всем технологическим емкостям, освобождаясь от взвешенных веществ, концентрирующихся в резервуаре для осадка (4) и от жировых материалов, концентрирующихся в сепараторном пространстве (3) и затем самопроизвольно или принудительно концентрирующихся в сборнике жира (6). Тяжелые загрязнения из зоны (4) удаляются периодически по мере накопления с последующей утилизацией или выбросом. Сброс осадка в канализацию недопустим, т.к. он содержит жиры и тяжелые минеральные примеси, затрудняющие транспортирование сточных вод. Перегородка (5) обеспечивает задержание тяжелого осадка.
После жироуловителя органогенные сточные воды, освобожденные от жира и тяжелых загрязнений, совместно с другими стоками могут отводиться в канализацию без ограничения.
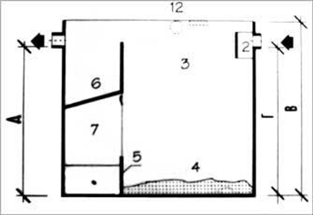
ПЛАН. СЕЧЕНИЕ СЕПАРАТОРА
Условные обозначения:
1 – горловина вточного трубопровода
2 – направляющая камера
3 – сепараторное пространство
4 – резервуар для осадков
5 – перегородка резервуара для осадков
6 – сборник жира
7 – впитывающий тоннель
8 – отточная камера
9 – отточный трубопровод
10 – арматура (у ОТБ-4)
11 – альтернативное расположение приточного и отточного трубопровода
12 – возможное расположение вентиляционного трубопровода (если не вентилируется входной канализационный трубопровод)
*Габаритные размеры указаны без длины подводящего и отводящего патрубков.
Жироуловители надежно предохраняют бытовую канализацию от загрязнения, так как жировые материалы при снижении температуры воды способствуют формированию отложений загрязнений в коммуникациях, что приводит их в аварийное состояние.
Сепараторы жиров защищают очистные сооружения от проблем в эксплуатации, так как присутствие нерастворенных жиров в сточных водах снижает эффективность процессов очистки.
Температура сточных вод, поступающих в жироуловитель, должна быть не более 40 °С!
Сепаратор жиров (жироуловитель) «UNI-S» изготовлен из полипропилена и предназначен для улавливания и удаления неэмульгированных жиров и масел из сточных вод от кухонь, ресторанов, столовых, кондитерских, мясоперерабатывающих и других предприятий перед выпуском образующихся сточных вод в очистные сооружения или городскую канализационную сеть.
Жироуловитель можно устанавливать непосредственно под мойки и в варианте для установки внутри помещения под пол (сифон на оттоке) или на полу (свободно стоящий).
Преимущества:
Высокая эффективность;
Компактность;
Гарантированная водонепроницаемость;
Несложный монтаж;
Минимальные расходы на установку;
Длительный срок эксплуатации;
Удобный доступ к накопителю жиров;
Удобство в обслуживании.
УСТРОЙСТВО И ПРИНЦИП РАБОТЫ.
Зажиренные сточные воды попадают в установку самотеком по трубе диаметром 50-150 мм. Вода самотеком проходит по всем технологическим емкостям, освобождаясь от взвешенных веществ, концентрирующихся в резервуаре для осадка (4) и от жировых материалов, концентрирующихся в сепараторном пространстве (3) и затем самопроизвольно или принудительно концентрирующихся в сборнике жира (6). Тяжелые загрязнения из зоны (4) удаляются периодически по мере накопления с последующей утилизацией или выбросом. Сброс осадка в канализацию недопустим, т.к. он содержит жиры и тяжелые минеральные примеси, затрудняющие транспортирование сточных вод. Перегородка (5) обеспечивает задержание тяжелого осадка.
После жироуловителя органогенные сточные воды, освобожденные от жира и тяжелых загрязнений, совместно с другими стоками могут отводиться в канализацию без ограничения.
ПЛАН. СЕЧЕНИЕ СЕПАРАТОРА
Условные обозначения:
1 – горловина вточного трубопровода
2 – направляющая камера
3 – сепараторное пространство
4 – резервуар для осадков
5 – перегородка резервуара для осадков
6 – сборник жира
7 – впитывающий тоннель
8 – отточная камера
9 – отточный трубопровод
10 – арматура (у ОТБ-4)
11 – альтернативное расположение приточного и отточного трубопровода
12 – возможное расположение вентиляционного трубопровода (если не вентилируется входной канализационный трубопровод)
*Габаритные размеры указаны без длины подводящего и отводящего патрубков.
Характеристики
Производитель
Юнилос
Высота
527
Длина
800
Ширина
600
Серия
М/1.5/175
Пиковый сброс (л/час)
175
Объем транспортный
252,96
Цена с НДС
28552
Склад в городе
Лабанова
Параметр: Производительность (л в сек.)
0.42
Параметр: Производительность (м3 в час)
1.5
Производительность (л в сек.)
0,42
Производительность (м3 в час)
1,5
Все характеристики
Отзывы
Отзывов еще никто не оставлял
0
Всего
- 5 звезд 0
- 4 звезды 0
- 3 звезды 0
- 2 звезды 0
- 1 звезда 0
С отзывами о магазине вы можете ознакомиться на
странице отзывов
Оставить отзыв
Похожие товары из раздела «Жироуловители»
Max
